Otra de escalera jjjjj
Voy a tener que restaurar una cabaña de montaña.
Pequeño.
Ya quitaron 2 metros parahacer un baño, es nivel criminal…no hay apenas agua,sin presión…y usan media casa…
Total les queda lo justo para una cocina-comedor-salon. Pero no saben como poner la escalera
!
Sdb ( salle de bain)
Divan-lit (sofa-cama)
Y mezzanine ( la cruz ) esaltillo.
Al final del sofa esta la unica ventana, quitaría luz.
En la otra esquina la estufa.
123084_1adaabe5f77766c361bbfb39267265ce_thumb|300x176
Asi que pienso hacer una cosa asi:

Se plegarian los dos o tres ultimos peldanos, irian sujetos en una escuadra, estantería contra la pared.
No tengo claro como pero habrá un cable, una polea y un peso para que sea fácil la maniobra.
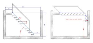
2,28 de altura, 3,335 de pared a pared.
Un autocadiste me dibujo esto.

20 y algo huella y tabica…45°…un paso de 61 o 62…no me convence.
Entonces se me occuren dos cosas, y me gustaría conocer vuestra opinión.
-
reducida del escape. Traducion d’echapée,el sitio que tenemos al final al bajar.
Me dice que 60 cm es un minimo, tendra razón, pero creo que estamos en un caso especial. Entre la furgo camper y el camping, no creo que moleste a la gente tener solo 45 cm . Van a llegar siempre de lado, solo levanta 19,76 cm al suelo, pueden incluso levantar el pie y atacar de lado.
Poniendo el pasa mano apartir del tercer peldaño, creó quesería aceptable no? -
arriba el desembarque sería un descansillo de 60 cm que en un principio pensé poner a la altura del altillo.
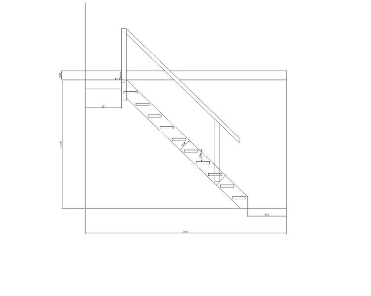
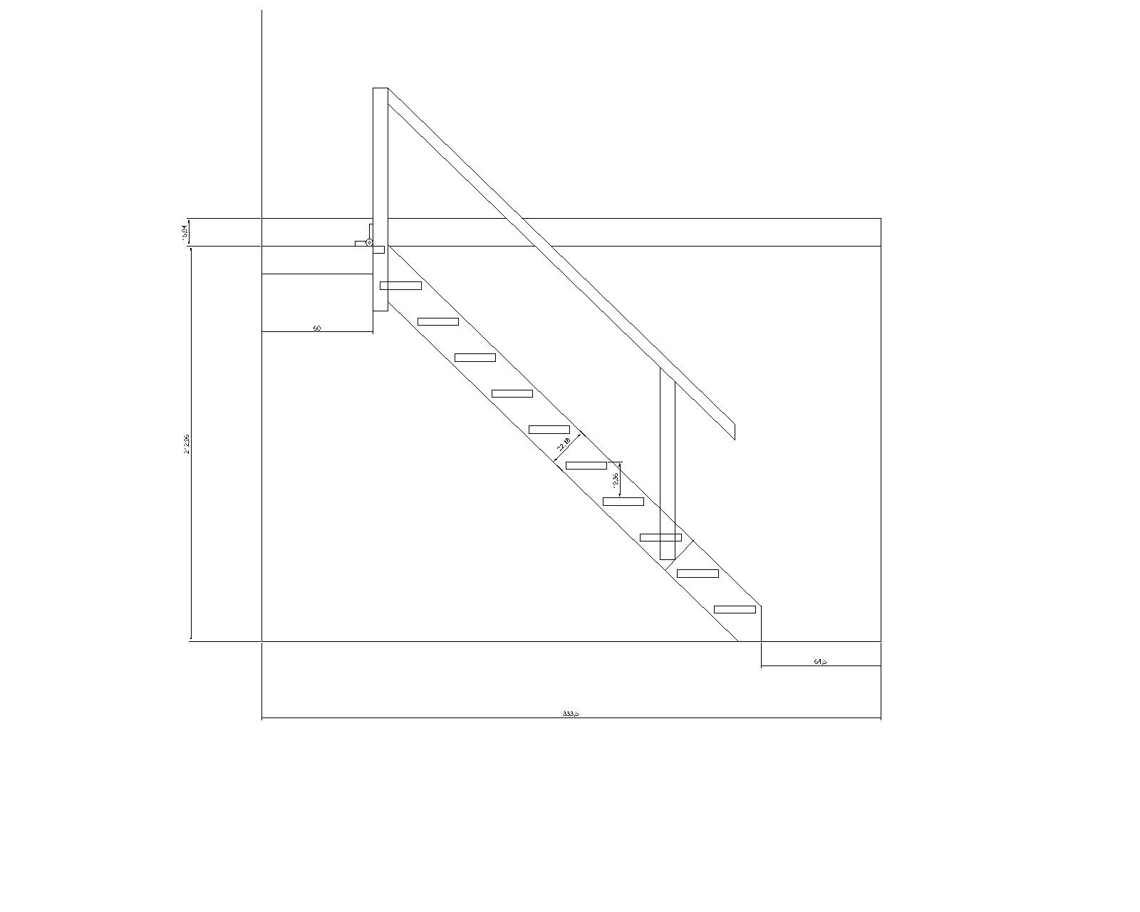
Por facilidad, lo fijo a la vigueta…
Pero…se me enciendo una bombilla esta noche: no es mas complicado fijarlo debajo dela vigueta, y el descansillo se transforma en el último escalón…ganando 15 cm.
Pero me dice el del autocad que…1,95 cm es poco larapasar debajo.
En estas condiciones,debajo estara el final del sofa, no es lugar de paso, no debería de momesta8 no?..
Yo creo que mas vale sacrificar un escape, y tener una pieza a 1,95 con escalera de de 41 ° ,que unos escapes comodos pero con escalera de 45°.
Cambiar la altura se puede hacer en la última y en estas condiciones menos altura y mucho mas huella.
Algo asi, dibujado sobre el insomnio, en la cama. Casi aescala ,y casi bien calculado
En fin.
Queda la duda de como colocar los balaustres.
Sera como una de varas , 50 cm de ancho, mas zancas, no se si ranurar un poco con la fresa de cola milano, o atornillr y pegar con PU .
Tengo miedo a fallar con la fresa, nunca se como calcular y igual debilita lazanca.
No?
Gracias








