Buenos días a todos,
como ya comenté en mi presentación, no soy carpintero ni profesional, pero la carpintería es uno de mis hobbies y siempre tengo ganas de aprender.
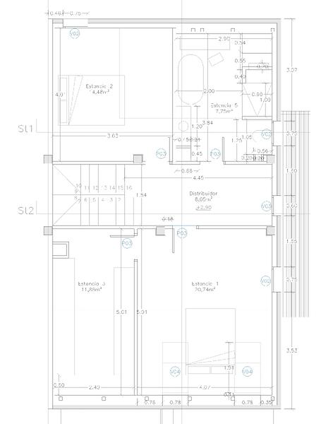
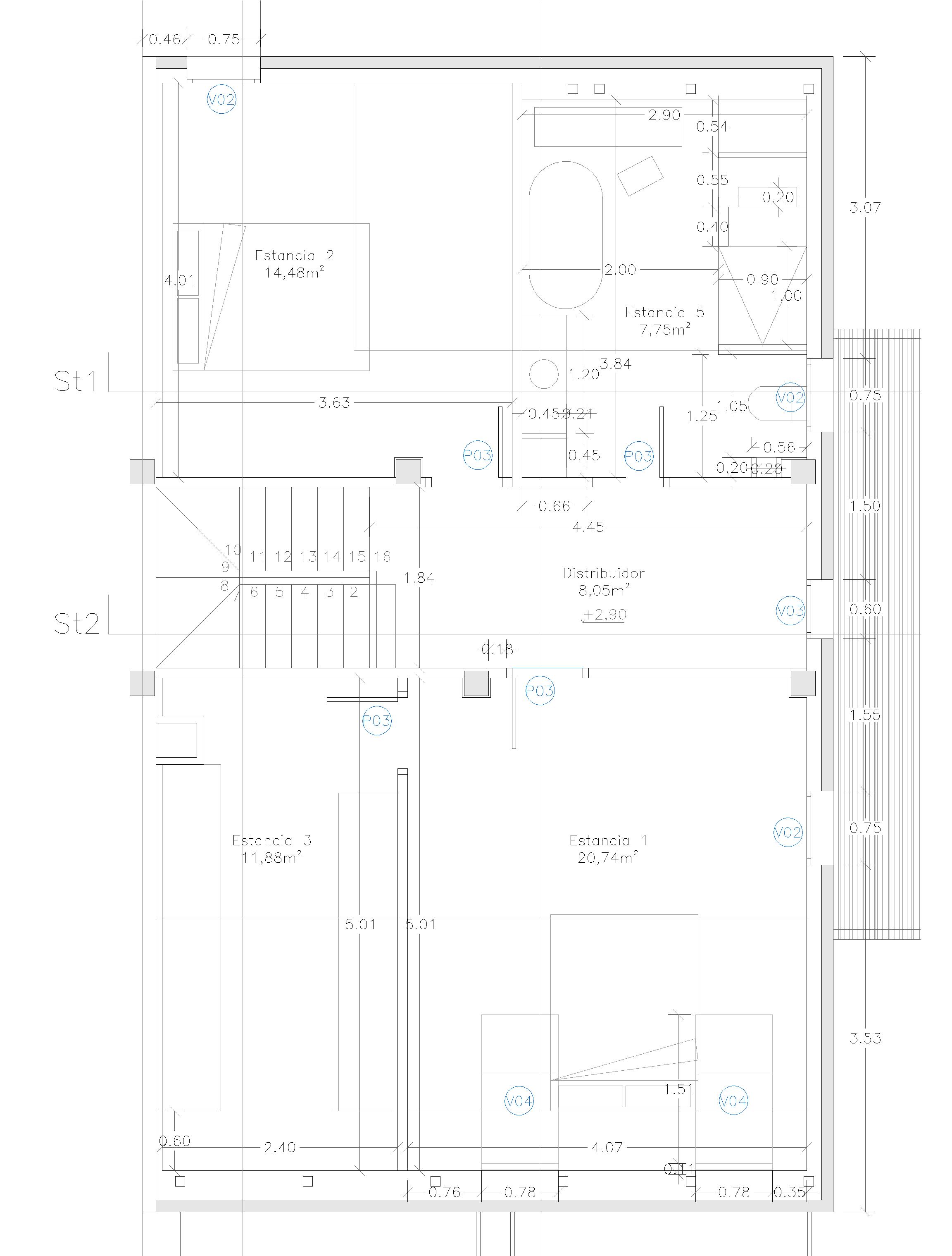
En el caso que me ocupa, estoy reformando la planta de arriba de una vivienda (estaba en bruto), y tengo un par de dudas acerca de la instalación del suelo laminado, que aunque no lo realice yo (o sí, aun está por decidir), quiero tener claros los conceptos para tratarlos con el profesional (o conmigo mismo dado el caso).
La escalera de subida ira revestida del mismo suelo laminado que la planta de arriba, por lo que mi duda es que tipo de transición debe llevar el último peldaño con respecto al distribuidor. Como se aprecia es más bien una sala, pero tanto por dimensión mayor como por entrada de luz, entiendo que la lama debería ir a lo largo, lo que hace que vaya perpendicular a los peldaños. No sé si es adecuado cambiar la dirección para que vaya en la dirección de los peldaños, o que transición hacer. También dudo si el peldaño de desembarco de la escalera, el 16, que ya es el propio piso de la planta, debe llevar la dirección del resto de peldaños y cambiar la dirección después, o si hay cambio de dirección, que sea desde el borde de este mismo peldaño (entiendo que el mecanizado de los bordes entonces será más laborioso, no es lo mismo mecanizar un lateral entero de una lama, que los lados cortos de 3 o 4 lamas.
Y a este respecto, dependiendo de la colocación en el pasillo, tengo la duda de por donde sería mejor iniciar la colocación, y la dirección que llevaría en los dormitorios, sobre todo en el 1, ya que hay entrada de luz desde la ventana V02 en la pared, y las ventanas V04 en el techo inclinado.
No estoy cerrado a la posibilidad de poner juntas de transición en las puertas, pero sobretodo me interesa acertar con las orientaciones.
Muchas gracias a todos por las opiniones.
