Armarios con tablero contrachapado

Buenas tardes!! Pues eso, que ando liado con una obra que va entera en contrachapado fenolico de abedul y estoy ahora haciendo unos armarios que lleva. Os ire poniendo fotos despues acabado en obra porque es una obra un tanto “especial”.

De momento me he peleado con los tiradores porque no sabia muy bien como hacerlos y al final he hecho una opcion que en un principio no me gustaba cuando lo pense y he tenido que acabar haciendola porque todo lo que probe quedaba peor.

El asunto era hacer estos tiradores fresados en el tablero a peticion del cliente

Para ello compre una fresa de cmt para hacer ranuras t track

Al ser contrachapado ya sabeis que al hacer el fresado sale de todo menos abedul, y el fondo del tirador deberia ser abedul por lo que al final opte por hacer otro fresado por detras y encolar un tablero delgado con la misma forma para que quedase todo de abedul



Y asi quedo…



Por detras un poco chapucilla pero no vi mejor opcion.

Y asi van los muebles





Mañana seguire con las encimeras y despues mas muebles que faltan.

Ire pasando fotos de la evolucion hasta enseñaros todo acabado. Ya vereis que va a ser una obra un poco “especial”

18 Me gusta

Pues esto no te lo hacen los de Ikea….. aquí entra en valor el carpintero de toda la vida..

En cuanto a los tiradores yo quizás me hubiese complicado la vida y lo que hubiese hecho sería embutir un taco de madera maciza y vaciarlo después,dejando un ligero marco si el cliente lo aceptara, pero tú solución a quedado muy limpia y estéticamente impoluta…supongo que hay un decorador o arquitecto de por medio y es difícil hacerles el gusto .

Los cantos del tablero quedan vistos ??

Los cantos vistos si. El cliente es miembro de un estudio de interiorismo. Me dan los planos y renders de todo. Es muy comodo trabajar asi. Lo unico, que me dan ellos detalles de los ensambles etc y eso le pido que me lo dejen a mi eleccion para poder ir rapido y facilitar el.montaje, bien con el cabineo o con dominos o tubillones y tirafondos, segun me convenga.

Por cierto, pense que el acabado seria un barniz mate o incluso acabado con aceite ya que se estila mucho eso y para mi sorpresa lo quieren lo mas brillante que pueda asi que le dare un acrilico brillo op 100. Me ha sorprendido, hacia años que nadie me pedia algo brillante.

1 me gusta

Una pregunta @Angel, no crees que sacando el frente de la base y el techo de los muebles a ras de de los laterales y haciendo un chaflán en la cara interior en todo el contorno que forman los mismos, hubiese dado un estilo más nórdico?

El estudio me da todas las cotas de lo que quieren, tengo que hacer justo lo que me piden



Es muy comodo trabajar asi porque esta todo definido.

1 me gusta

Si, si, eso está claro, el cliente es el que paga y por eso exige y está claro que tú estás haciendo lo que te han encargado. Mi pregunta sobre los chaflanes era solo para saber tu opinión.

Gracias por la respuesta.

Saludos.

Pues que te lo den todo masticado es una gran ventaja, asi no tienes que calentarte la cabeza , yo muchas veces me voy a la cama dándole vueltas de como haría alguna cosa.

2 Me gusta

Detalles:

Vitroceramica enrasada con la encimera, no me gusta nada que estas vitros sin marco queden encima de encimera, siempre estan muy expuestas a golpes en la orilla. Si hago yo la encimera me gusta enrasarlas.





Otro detalle, en el mueble de la habitación va una bañera integrada en el mueble

Un cafe y seguimos

13 Me gusta

Hice cama y armario con tablero de abedul también una escalera,es un producto excelente. lastima que con el precio que
sale los clientes se tiren para atrás.
Buen trabajo :+1: :+1: @Angel !

1 me gusta

no se pone guarra la junta entre el contrachapado y la vitro? como la sellas? polimero?

Buenas @MartinCarpintero , no hay junta, puede haber una decima de milimetro, no mas. Yo nunca sello las vitros, las dejo posadas solamente. Asi cuando necesites puedes levantarla y limpiar. La vitros traen ellas una especie de goma pegada por debajo. Si la sellas con polimero si tienes que quitar la vitro te acuerdas de todo!!

Supongo que lo has hecho con cnc no? porque vaya locura de precisión :joy:

1 me gusta

Si, es trabajo de cnc

Los fabricantes de algunas placas vitroceramicas que he colocado recomiendan no pegar las placas a las encimeras,solo su fijacion con las grapas que llevan o solo por su propio peso sobre la encimera ,el pegado de la placa puede anularte la garantia por no seguir las instrucciones de montaje.Es to tiene su lojica si piensas que el cristal tiene grandes dilataciones y el pegado puede impedir estas dilataciones llegando a romperse.

En el caso de Angel no se si tan ajustado puede llegar a tener algun problema ,pero supongo que ya lo tiene experimentado.

1 me gusta

Hola @Angel

Pedazo de encimera, puede ser de dos tableros de 19mm pegados?

Por otro lado, el hueco que hay a la derecha de la vitrocerámica y si no es inconveniente, que va a ir alojado en él?

También veo que en la penúltima foto hay otro hueco, puede ser para el fregadero?

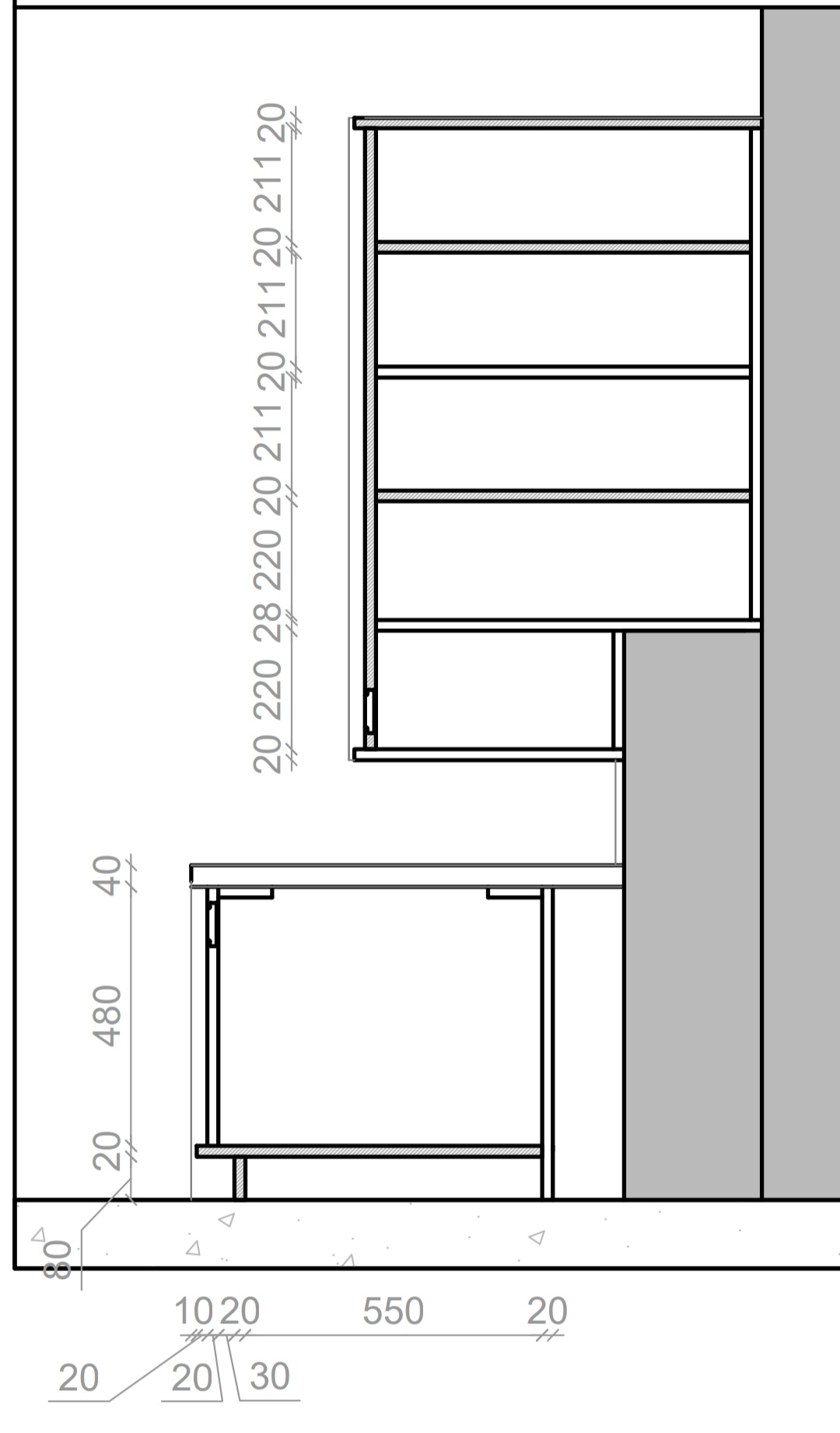
Perdona tanta pregunta, veo que tu trabajo es impecable como siempre, pero no acabo de pillar la idea. Por ponerte un ejemplo, ayer compartiste un plano con medidas y en el perfil de los bajos, sumo las medidas y me sale 600 mm de altura o algo así, puede ser? lo pregunto porque para un amueblamiento de cocina es inferior a lo que yo estoy acostumbrado a ver normalmente.

Pero repito que tu trabajo me está pareciendo estupendo y bien hecho, lo único que hay cosas que no acabo de comprender. No sé si me entiendes lo que quiero decir…

Hola @Janema , el croquis que mide 60 cm corresponde al bajo que lleva la bañera, no es la cocina. La cocina si no recuerdo mal tiene 87 cm mas 3 cm de la encimera.

La encimera es de contrachapado de 30 mm, el hueco de la derecha de la vitro corresponde a un fregadero que han hecho los albañiles de obra. Espero que haya cogido bien las medidas y todo esto “encaje” en el sitio. Cuando llegue tenian hecho una obra que segun lo que queria el cliente era imposible asi que mande tirar todo lo que hay a la izquierda del fregadero, y quedo solo el fregadero, que va entero oculto bajo la encimera


2 Me gusta

Ok entendido, se trata de amueblamientos de estancias diferentes. Ahora sí… gracias por la respuesta!!!

1 me gusta

no deja de ser curioso, pero no acabo de ver lo de la vitro, puede que parezca chulo pero no lo veo practico, encima, estas vendido el dia que se rompa …

Tanto dinero gastado en una cocina a medida cin tableros especiales en vez de melamina gris u otro color, y te planta una vitro cecotec, una de las peores marcas de electrodomestico pequeño que hay🙈.

Que envidia de maquinita el cnc tuyo :heart_eyes:

1 me gusta

Ya os dije que era una obra que iba a ser muy especial :rofl: ya lo ireis viendo… imagino que cuando este terminada saldra en alguna revista de decoracion-interiorismo, ya sabes con fotografias de calidad, enfoques de detalles, luces etc etc

1 me gusta

Aquí una máquina como el Shaper en un taller pequeño puede hacer un buen trabajo.