Sierra escuadradora casera y pregunta sobre futura sierra/escuadradora

El incisor a parte, es que al ser un disco muy pequeño y por ello pocos dientes, y al llevar solo unas decimas de profundidad de corte, todo el corte lo hace en material superduro y por ello se desgasta rapidisimo. En cuanto haces varios cortes ya notas que la melamina pasa casi “flotando” por encima del.incisor.

Por cierto, hace dias me ofertaron un disco de diamante para melamina. Segun el vendedor la diferencia de precio es rentable pero a mi me asusta… creo recordar que andaba el disco por los 900 € :scream:

1 me gusta

@MartinCarpintero y no tienes cerca un almacén que te de los paneles cortados y canteados en bandas al largo ?

1 me gusta

El afilado también será especial y saldrá un dinero :money_mouth_face::money_mouth_face:

2 Me gusta

Por cierto, hablando del incisor y de que algunos no lo usamos normalmente… no se si os ha pasado a alguno, a mi si :confounded_face: , que como no estas acostumbrado a tener el incisor arriba arrancado, de pasar la mano por la zona el dia que lo tienes arrancado… a mi una vez, y me dio como calambre :joy:, por supuesto me hizo una exfoliacion de piel gratis..
Hay alguna maquina que tiene led roja en esa zona cuando esta arrancado, no se si felder o altendorf

1 me gusta

No m’he ha pasado nunca, Si entrar antes la pieza sobretodo con piezas largas sin contar que estava el disco incisor y raspar la pieza :sob::sob::sob:

1 me gusta

Volviendo al tema, estan muy bien todo eso de las de incision etc, pero para una persona como creo que es @MartinCarpintero , que tiene intencion de seguir con esto de forma profesional, mi consejo es que intente habilitar un espacio para una escuadradora. Yo me iria de cabeza a la que puso @virutasibz . Seria un antes y un despues… para escuadrar con rapidez y precision puertas, cajones, poder hacer despieces de armarios, aunque traigas tiras como dice @Francis10 , precortadas y canteadas, que es muy buena opcion, poder deshilar tablon macizo etc etc..

1 me gusta

Voy a escribir la que me ha mandado @virutasibz, llevaba días mirando y no había visto esta, yo no sé wallapop a veces no lo entiendo bien.

Pero me sigue preocupando lo de cortar piezas pequeñas, no os da problemas que el disco esté justo entre medias? A demás tengo entendido que el carro siempre está un poco más alto que la mesa, lo que hace que al cortar, por ejemplo listones no queden escuadradora porque no apoyan bien

1 me gusta

Hola @MartinCarpintero en este post que creo hace un año la compañera @Trisquel00 se trató sobre sierras de mesa y escuadradoras. Espero que te sirva.

Por cierto, no sé que tal le irá a @Trisquel00 con las máquinas que compró al final. A ver si lee este post y nos cuenta que tal le va.

Saludos.

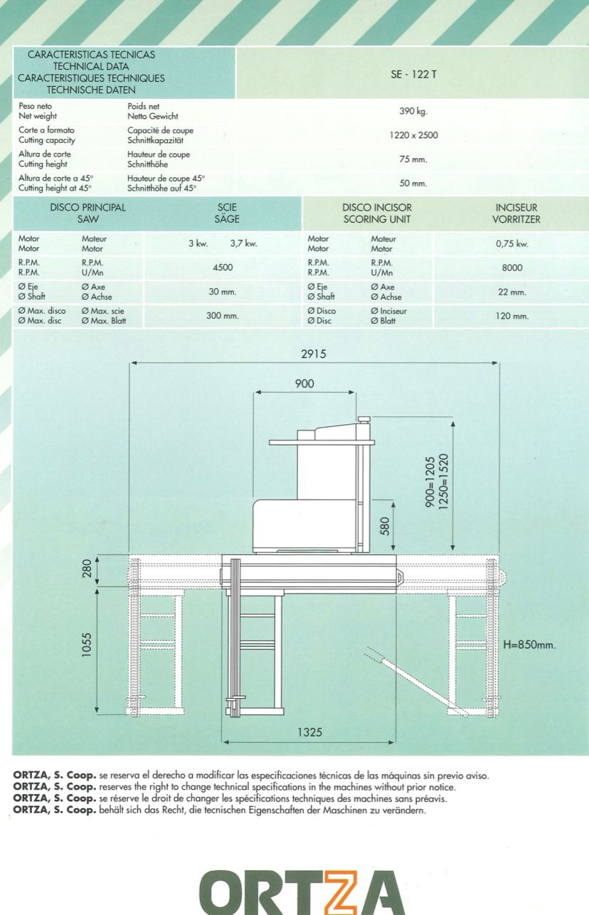
Este es el plano de la maquinita. Entiendo que con el carro centrado son 1325cm de largo no? Y luego para poder moverlo en toda su longitud son 3 metros de movimiento libre. Me ha dicho el que lo vende que el carro se quita fácil que eso me interesa porque normalmente no lo usaré.

De todas formas creo que voy a tener que reorganizar el taller porque así como lo tengo ahora no me cabe.

Buenas tardes Ángel, por favor, puedes dar algo de información sobre ese tipo de disco. Es de CMT? Valdría para una ingletadora adaptado a las medidas necesarias de la misma?

Gracias por adelantado.

Saludos.

Para ir bien para esta máquina necesitas mínimo 3x 3 metros de espacio ,en la práctica algo más ya que tú tienes que poder acceder bien a la máquina y poder poner las piezas encima,en talleres pequeños no es raro que se ponga un tablero encima de la maquina y se utilice de espacio de trabajo cuando no se utiliza .

1 me gusta

El carro es muy manejable para quitar y poner si

Los discos que tengo son de kanefusa, 300 de diametro y 60 dientes

Se pueden poner en ingletadora sin problema. Van muy bien en melamina pero se desgasta el corte mas rapido que los trapecio plano por ejemplo, pero dejan un corte muy limpio. El diente concavo es lo que tiene, corta muy bien porque tiene buen filo en los laterales del diente pero es algo parecido a si tienes un cuchillo muy bien afilado pero tocas hueso…

1 me gusta

Veo que en el disco como si utilizarás también estabilizador??

Yo los discos de 300 de CMT finos es imposible que corten bien en la escuadradora si los estabilizadores al final los dejo solo para las ingletadoras.

No, es grueso ese disco. La marca creo que es del plato que lo sujeta en la escuadradora

Si ya veo 2,2 el cuerpo, bueno en disco para cortar tablero no pasa nada con lod estabilizadores en macizo si que pierdes altura de corte, me da impresión que la arandela de sujeción es muy grande ??

La arandela no se seguro pero igual 100 de diametro si tiene. Mi escuadradora con disco de 300 da 75 mm maximo de altura de corte a 90°

Pues me parece que no me va a caber la máquina, porque 3 metros de ancho… es demasiado, los 5 de largo si los podría llegar a conseguir pero lo otro me rompe el taller, voy a tener que coger algo más pequeño, porque al final con una como esa voy a tener que dimensionar un poco los tableros antes de pasar por la escuadradora porque enteros no me van a entrar por espacio, y para eso pues cojo una más pequeña creo yo