Nuevo taller!

Buenas tardes a todos,
me alegra deciros que por fin tengo un sitio donde poder entretenerme!
Hemos comprado una nave que tiene una entreplanta, además de para otros usos, una parte (aun no se como de grande), la podré destinar a un taller. No me voy a dedicar a esto, es sólo para entretenerme y poder guardar esas cosas que tanta rabia me da tirar.

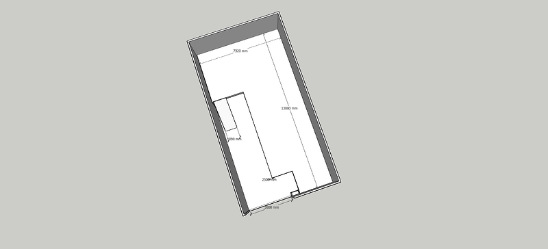
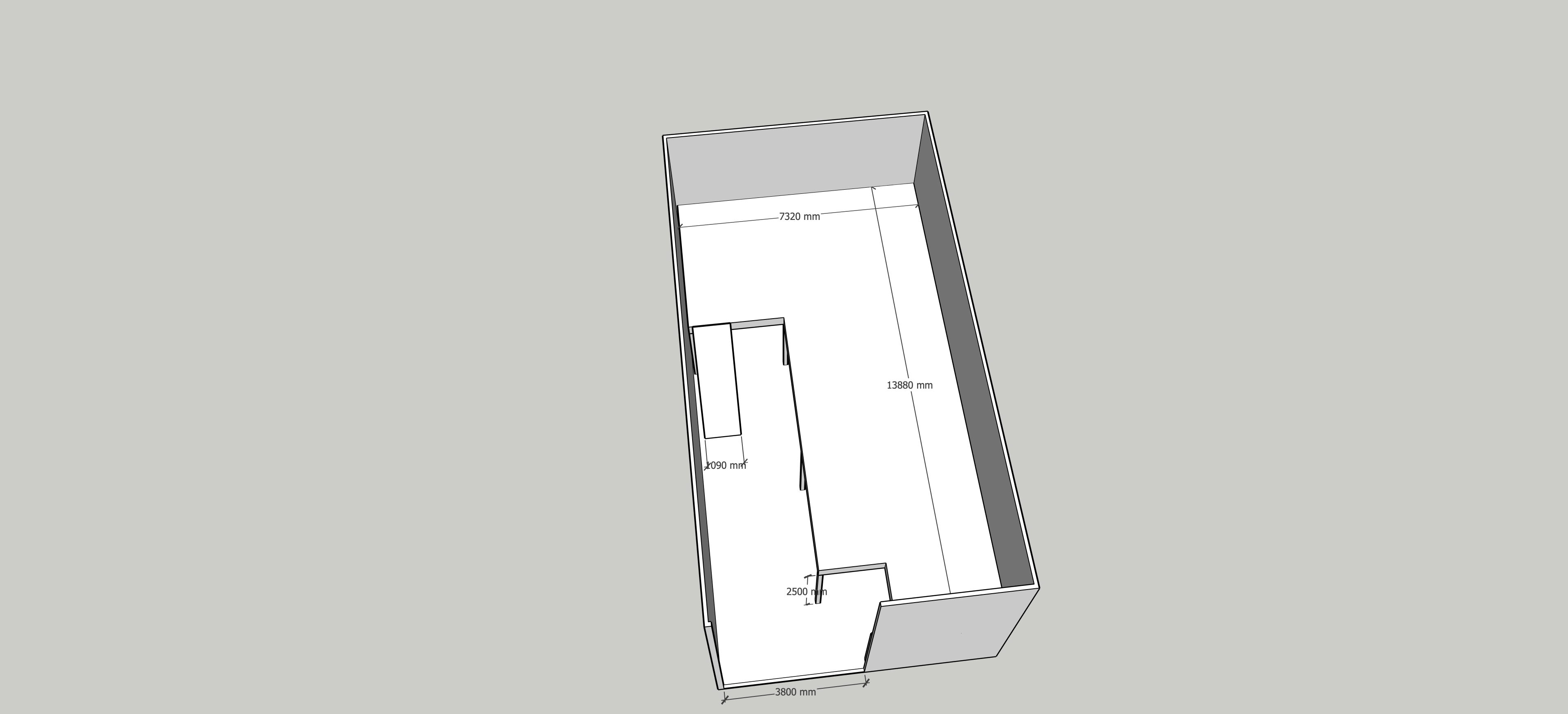
La nave tiene portón grande, luz y la toma de agua y desagüe (aunque el agua está sin dar de alta). De planta son unos 100m2, y la entreplanta será de unos 70.
De momento estoy limpiando y pensando una distribución adecuada. También le estoy dando vueltas a si dar de alta el agua, hacer baño…

En fin, que muy contento. Voy a ver si soy capaz de compartir un boceto del local:





10 Me gusta

Esta es la imagen real del local:

20 Me gusta

Que bien tener un sitio asi.

1 me gusta

Genial! Ve actualizando según vaya avanzando el proyecto :raising_hands:

1 me gusta

Ufff, que pintaza tiene el sitio.. enhorabuena de verdad !!! Por favor, ve mostrandonos los avances para disfrutarlo contigo (y tambien odiarte un poquito !!!)

1 me gusta

Menudo garito!!! Eso tiene un pintón…

1 me gusta

Hombre si esta lejos de la casa…
Y limpiar suelo, fregar manos, enfriar una pieza, apagar algo,..
siempre se necesita.
Mejor ahora que una vez sin poder moverte.

1 me gusta

La nevera.

Que suerte un espacio como este…

Yo tendría hueco…todo lo que me gusta, madera, embutidos y quesos…

Que lo disfrutes

3 Me gusta

Qué buen planteamiento.

1 me gusta

yo he tenido alquilados varios locales sin baño, y una cosa digo, tener un baño donde trabajas, es el mayor lujo que puedas tener.

Eso es lo primero que tienes que hacer.

Y en cuanto pueda, yo pongo una ducha sencillita.

5 Me gusta

Esto que voy a decir, no me llena de orgullo, pero debido al tamaño y ubicacion de mi tallercito, me estoy volviendo un experto en el noble arte del “Meado en botella de plastico”!!

2 Me gusta

Pues tiene sus ventajas lo de la botella porque así la llevas directamente al Ambulatorio y te dicen cómo vas de azúcar, colesterol, etc. Y ahorras envases de plástico…

1 me gusta

¡Qué ducha, jacuzzi hombre!

1 me gusta

Tiene muy buena pinta ese local.
Enhorabuena y que la disfrutes por mucho tiempo.

1 me gusta

Para eso tienes los Ecotronos! :grin::grin:

2 Me gusta

Yo suelo reciclar los tarros de mermelada, por aquello del impacto medioambiental. Lo malo que en la analítica me sacan siempre el azúcar alto

4 Me gusta

Lo del baño ni te lo pienses, es algo básico para tener en un sitio donde vas a echar horas trabajando.

3 Me gusta

Coño, pues gracias por la información, sólo me falta que me quiten el dulce de la vida.
No se puede ser tan ecológicamente responsable.

Tampoco es necesario ir al ambulatorio

7 Me gusta